Sign up to get new listings emailed daily! JOIN SIGN IN
Donna Rickard
REALTOR®
Facebook Icon LinkedIn Icon Vcard Icon VCard Icon 

103 Checkerberry Rd, Oak Ridge, TN 37830

$679,900
  • 103 Checkerberry Rd, Oak Ridge, TN 37830 Main Photo

40 Total Photos [Click to View All]

Active Price Reduced by $20,000 on March 19th, 2026
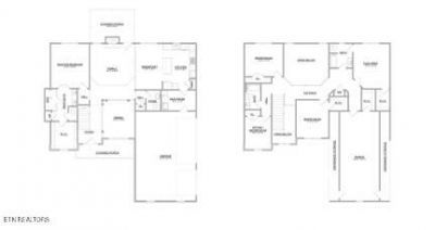
BEDS5 BATHS3 full 1 partial SQUARE FEET3,361 MLS#1326556
STATUSActive PROPERTY TYPEResidential - Single Family SUBDIVISIONThe Preserve NEIGHBORHOODRoane County - 31

Property Description

New Construction featuring The Montgomery floor plan in The Hilltop at The Preserve! The Montgomery is currently under construction, expected to be complete in March 2026. The Preserve is more than a place to call home it's a lifestyle for families who relish in a resort like community at an affordable price. Amenities include the beach entry outdoor pool with circular tube slide, a complete Wellness Center with gym, indoor pool, hot tub, sauna, and steam room. You can also enjoy tennis, basketball and pickleball courts as well as a playground and dog park! Enjoy the beauty of The Preserve through the walking trails that take you to the community fishing dock. Full-service Marina and ship store open seasonally. The day use dock and boat launch allows you to explore or fish along the 5 miles of shoreline by boat, kayak or canoe. Covered boat slips offer electricity, fuel and lifts and are available for rent.

103 Checkerberry Rd | MLS# 1326556

This single family home located at 103 Checkerberry Rd, Oak Ridge, TN 37830 is currently listed for sale with an asking price of $679,900. This property has 5 bedrooms and 3 full and 1 partial baths with 3361 sq. ft. Checkerberry Rd is located in the The Preserve subdivision. Search The Preserve real estate on www.donnarickard.com today.

Property Features

Property Type: Residential - Single Family
Cooling: Central Cooling, Ceiling Fan(s)
Fireplaces: 1
Fuel Type: Gas
Garage: 3
Heating: Central, Natural Gas
Home Style: Craftsman
Lot Size: 0.56 Acres

Amenities

Walk-In Closet(s)
Kitchen Island
Pantry
Windows - Vinyl

Feature Descriptions

Appliances: Gas Cooktop, Dishwasher, Disposal, Microwave
Association/Condo Fee: 105.36/Monthly
Association Amenities: Swimming Pool, Tennis Courts, Golf Course, Playground, Recreation Facilities, Sauna
Community Features: Sidewalks
Days on Site: 68
Exterior: Stone, Vinyl Siding, Brick, Frame
Fireplace: Stone, Gas Log
Flooring: Carpet, Hardwood, Tile
HOA Y/N: Yes
Lot: Golf Community, Level
Parcel #: 0
Parking: Garage Door Opener, Main Level
Security Features: Smoke Detector
Sewer: Public Sewer
SQFT Total: 3361
Swimming Pool: Yes
Water: Public

Local Schools

High School: Oak Ridge
Middle School: Robertsville
Elementary School: Linden

Listed By / Shown By

Listed By

Agency Name: Southland Realtors, Inc

Shown By

Agent Name: Donna Rickard
Agent Phone: (865) 548-6730
Agency Title: Crye-Leike Real Estate Services

IDX logo

Source: East Tennessee REALTORS

Estimate Your Payment

Estimated Payment

$ 1,711.47 per month $1,513.16 Principal & Interest $0.00 Property Tax (data not provided by mls) $198.30 Homeowner's Insurance

Change Payment Information

%
years/fixed
yearly
yearly (est.)
(Payments are an estimate and may vary by lender)
Disclaimer: All information deemed reliable but not guaranteed. All properties are subject to prior sale, change or withdrawal. Neither listing broker(s) or information provider(s) shall be responsible for any typographical errors, misinformation, misprints and shall be held totally harmless. Listing(s) information is provided for consumers personal, non-commercial use and may not be used for any purpose other than to identify prospective properties consumers may be interested in purchasing. Information on this site was last updated 03/25/2026. The listing information on this page last changed on 03/25/2026. The data relating to real estate for sale on this website comes in part from the Internet Data Exchange program of Delta Media Group MLS (last updated Wed 03/25/2026 1:15:14 AM EST) or GAMLS (last updated Tue 03/24/2026 11:14:58 PM EST) or CARMLS (last updated Wed 03/25/2026 1:05:14 AM EST) or RCAR MLS (last updated Wed 03/25/2026 1:07:09 AM EST) or MAAR MLS (last updated Wed 03/25/2026 1:11:57 AM EST) or FMLS (last updated Tue 03/24/2026 11:43:08 PM EST) or East Tennessee REALTORS (last updated Wed 03/25/2026 12:24:32 AM EST) or RealTracs (last updated Wed 03/25/2026 12:25:30 AM EST) or Arkansas CARMLS (last updated Tue 03/24/2026 11:26:42 PM EST) or GSMAR MLS (last updated Tue 03/24/2026 9:13:37 PM EST) or Baldwin County MLS (last updated Wed 03/25/2026 1:11:10 AM EST) or Tennesse Virginia MLS (last updated Tue 03/24/2026 11:53:26 PM EST) or Emerald Coast MLS (last updated Wed 03/25/2026 12:05:21 AM EST) or Northeast Oklahoma Real Estate (last updated Tue 03/24/2026 11:23:48 PM EST) or Southern Kentucky MLS (last updated Tue 03/24/2026 9:55:06 PM EST) or SOMO MLS (last updated Tue 03/24/2026 11:54:20 PM EST) or North Georgia MLS (last updated Tue 03/24/2026 10:50:27 PM EST) or Golden Triangle MLS (last updated Wed 03/25/2026 1:10:07 AM EST) or MLS United (last updated Wed 03/25/2026 1:06:14 AM EST) or Lakeway MLS (last updated Wed 03/25/2026 1:11:45 AM EST) or Batesville MLS (last updated Wed 03/25/2026 12:00:07 AM EST) or Central Georgia MLS (last updated Wed 03/25/2026 12:54:10 AM EST) or North Central Mississippi MLS (last updated Tue 03/24/2026 9:32:27 PM EST) or Hot Springs MLS (last updated Wed 03/25/2026 12:27:40 AM EST) or Huntsville/Valley MLS (last updated Tue 03/24/2026 10:59:12 PM EST) or Shoals MLS (last updated Wed 03/25/2026 12:32:07 AM EST) or Tupelo MLS (last updated Tue 03/24/2026 11:42:29 PM EST) or NEAKBOR MLS (last updated Tue 03/24/2026 11:10:22 PM EST) or EAKBOR MLS (last updated Wed 03/25/2026 1:13:05 AM EST) or CWTAR MLS (last updated Wed 03/25/2026 12:10:52 AM EST) or NWAKBOR MLS (last updated Wed 03/25/2026 1:09:15 AM EST) or Upper Cumberland MLS (last updated Tue 03/24/2026 11:59:38 PM EST) or Hattiesburg MLS (last updated Tue 03/24/2026 10:59:50 PM EST) or Puerto Rico MLS (last updated Wed 03/25/2026 1:05:08 AM EST). Real estate listings held by brokerage firms other than Crye-Leike Real Estate Services may be marked with the Internet Data Exchange logo and detailed information about those properties will include the name of the listing broker(s) when required by the MLS. All rights reserved.
Privacy Policy / DMCA Notice / ADA Accessibility

Login to My Homefinder

Pixel